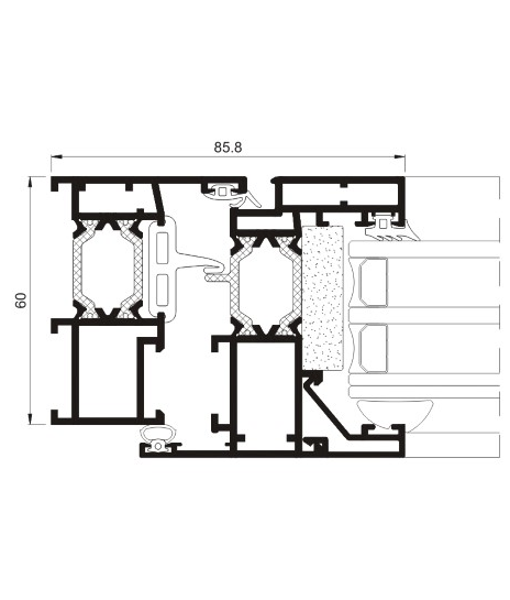
La fenêtre aluminium COR60 allie design moderne et haute performance. Elle offre une isolation thermique et acoustique exceptionnelle grâce à une rupture de pont thermique de 24 mm et un vitrage jusqu’à 46 mm. Son coefficient Uw atteint 1,0 W/m²·K avec une réduction acoustique jusqu’à 48 dB. Elle garantit une grande résistance avec une perméabilité à l’air A4, une étanchéité E1650 et une résistance au vent C5. Son design est entièrement personnalisable avec un large choix de finitions : RAL, ton bois, anodisé ou bicolore. La fenêtre COR60 propose différentes ouvertures : à la française, oscillo-battante, coulissante, à soufflet ou pivotante. Sa sécurité est renforcée grâce aux ferrures Evo Security et aux charnières cachées en option. La COR60 combine esthétisme, confort et durabilité, idéale pour la rénovation comme pour la construction neuve.
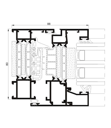
La fenêtre aluminium COR70 allie design moderne et hautes performances thermiques. Grâce à ses profilés fins et robustes, elle offre une large surface vitrée pour une luminosité maximale et un style épuré. Sa rupture de pont thermique et son vitrage jusqu’à 55 mm assurent une excellente isolation, avec un coefficient Uw pouvant atteindre 0,9 W/m²·K. Disponible en ouvrant visible ou caché, elle garantit également une parfaite étanchéité à l’air, à l’eau et au vent. Élégante, performante et durable, la fenêtre COR70 est idéale pour les projets neufs comme pour les rénovations exigeantes, tout en offrant de nombreuses possibilités de personnalisation en termes de coloris et de finitions.
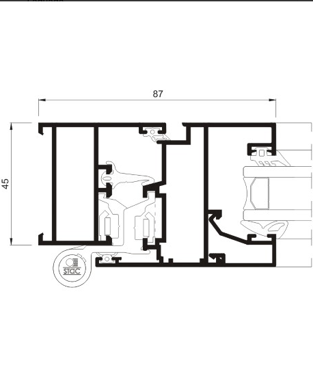
La fenêtre aluminium COR80 combine robustesse et esthétisme. Ses profilés plus épais améliorent la rigidité tout en conservant un rendu visuel moderne. Elle supporte des vitrages plus lourds, offre une isolation thermique et acoustique renforcée, ainsi qu’une grande étanchéité à l’air, à l’eau et au vent. Adaptée aux grands formats, elle est idéale pour les constructions exigeantes ou les façades nécessitant de grandes ouvertures, sans compromis sur la personnalisation (coloris, finitions, type d’ouverture).
La fenêtre aluminium COR2000 offre une performance exceptionnelle. Avec ses profilés très robustes, elle permet le support de vitrages très épais et des formats imposants tout en maintenant une excellente isolation thermique et acoustique. Elle assure aussi une grande étanchéité à l’air, à l’eau et au vent. Parfaite pour les projets architecturaux ambitieux, elle se décline en finitions variées pour s’adapter à votre style.















